中古一戸建て

銭函1丁目戸建[物件特徴]

 

掲載情報更新日:2026年04月10日 次回更新予定日:2026年04月24日

680万円

月々のお支払い例


万円


計算

※ 月々のお支払例は目安の試算となりますので、金融機関や商品によって借入金額の条件は異なります。詳しくは店舗までお問合わせください。

所在地

小樽市銭函1丁目

交通

JR函館本線『銭函』 徒歩13分 (約1040m)

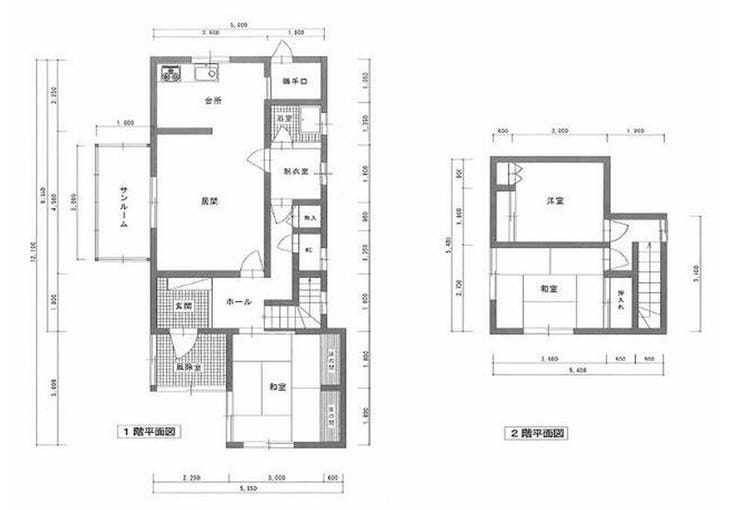
【間取り】

【間取り】

【外観】

【外観】

物件価格

680万円

月々のお支払い例

1,659.77

※金利1.20% 借入金額:物件価格、借入期間35年

物件の特徴

主な設備

電気

上水道

公営水道

下水道

公共下水

プロパンガス

個別プロパン

給湯

コンロ二口

独立キッチン

バス

浴室に窓

トイレ

室内洗濯機置場

洗面所独立

和室

全居室6畳以上

2面採光

庭10坪以上

南庭

サンルーム

シャッター車庫

主な特徴

南向

前道6m以上

南側道路面す

海に近い

緑豊かな住宅地

閑静な住宅街

周辺交通量少なめ

海が見える

山が見える

通風良好

陽当り良好

2階建

前面棟無

角地

物件概要

価格 680万円 間取り 3LDK
物件種別 中古一戸建て
所在地 北海道小樽市銭函1丁目
アクセス JR函館本線『銭函』 徒歩13分 (約1040m)
建物面積 公83.97㎡ 駐車場 あり 普通:2台
築年月 1976年(昭和51年)07月築
建物構造 木造 2階建 工法
主要採光 南向 バルコニー
保証・評価
リフォーム
土地面積 公308.18㎡(93.22坪) 接道 南側(公道)幅 約6.0m 間口 約18.00m
東側(公道)幅 約5.0m 間口 約13.00m
西側(公道)幅 約18.0m 間口 約17.00m
私道 セットバック
地目 宅地 地勢 平坦
権利 所有権
都市計画 市街化区域
用途地域 1種中高
建ぺい/容積率 60% / 200% 土地国土法
許可番号 建築基準法
法令制限
小学区 銭函小学校 徒歩14分 (約1100m) 中学区 銭函中学校 徒歩10分 (約750m)
現況 居住中 引渡 相談
その他費用
備考
物件番号 4547936 取引態様 媒介

電話で問合せ

011-792-6430

定休日:水曜日
営業時間:10:00~18:00

物件番号をお伝えください

物件番号

4547936

【取扱い店舗】ハウスドゥ 美香保取扱い店舗情報
ナビ女性画像

【取扱い店舗情報】

ハウスドゥ 美香保
取扱会社:株式会社シロクマエステート
所在地:〒065-0022 北海道札幌市東区北22条東7丁目2-28
電話番号:011-792-6430 FAX:011-792-6431
免許番号:北海道知事 石狩(2)第9009号
所属団体:(公社)全日本不動産協会会員
(公社)不動産保証協会会員
(一社)北海道不動産公正取引協議会加盟
定休日:水曜日
営業時間:10:00~18:00

もっとたくさん物件がみたい!という方へ

店頭で

店頭ではHPに掲載できない物件を併せて
106件をご案内できます!

Webで

ご希望にマッチした物件や、新着・値下げ情報を
即日メールにてお届けします!

ページトップ

ページトップ